Interior & Exterior design services

Bainbridge Island entryway featuring dark botanical pattern wallpaper, fluted glass door inserts, and a black tufted leather bench.

Photo by Emily Barrows Photography

New Builds, Remodels & Renovations

Whether you're starting with a blank slate, building from ground up or reimagining an existing space, we'll guide you through every decision — from the first concept to the finishing touches.

Our collaborative process

Envision & Plan

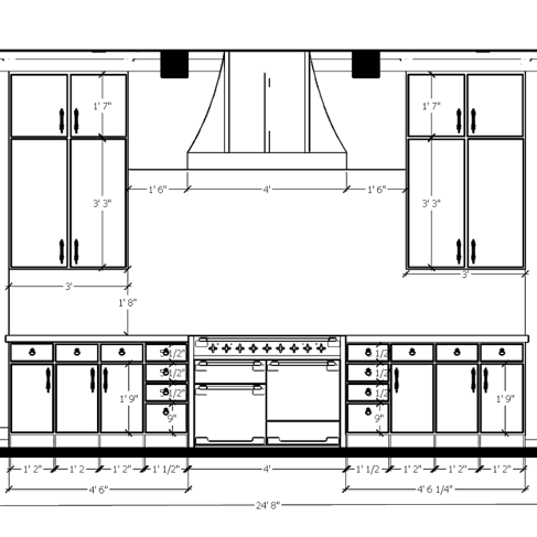
Technical kitchen elevation for a Bainbridge Island home showcasing a tapered range hood, symmetrical Shaker cabinetry, and double oven.

Every project begins with a conversation, an opportunity to explore your ideas, understand your budget, and define your priorities. From there, we shape those insights into a clear, intentional direction. A site visit grounds us in the reality of your space, and early drawings give your vision its first tangible form, setting a strong foundation for everything that follows.

Design & Finish Selection

Diagram of kitchen materials including antique brass finish pendant light, sea glass cabinet finish, Benjamin Moore Mascarpone wall color, Atmos Gold countertop, Hendricks gold pendant, wood slat cabinet finish, Aga cascade range hood, Aga duel fuel gas range, and a marble backsplash.

Choosing the right components and finishes is where good design saves you time, budget, and costly missteps. With access to our showroom of curated materials, we'll help you make selections with confidence. 3D spatial layouts and renderings bring the designs to life, so you can see what you have selected in your spaces.

implementation

A spacious kitchen with wooden ceiling beams, cream-colored cabinets with gold handles, a marble backsplash, and a vintage-style rug on wooden floor. There's a window with a hanging lamp, and a round dining table set with bowls and cutlery.

We bundle it all together into construction ready documents for implementation. Detailing every element for your scope. Including material bids & quotes of your finishes selections. We coordinate directly with your contractor or architect on your behalf — bridging the gap between design and construction so nothing gets lost in translation.

the value of
good design

Design services typically represent 5–20% of your total project budget, depending on scope and needs. It's an investment that pays for itself — ensuring the right choices are made from the start and your project reaches completion without costly detours.

Bainbridge Island luxury powder room with burl wood vanity, marble countertop, brass fixtures, and scenic tree pattern wallpaper.

Photo by Emily Barrows Photography

“she really understood what we hoped to accomplish and balanced the design with the construction budget.”

— Jon

Get started today.

Color Sanctuary showroom

bainbridge island’S
design center

The Color Sanctuary showroom offers a curated selection of the quality finishes to complete your project. From cabinetry and counters to tile, lighting, flooring, window treatments, hardware and built in closets. We carry a thoughtfully selected mix of finishes, including options you won't find anywhere else on the island.

Bainbridge Island interior design showroom featuring a botanical mural wall, modern gold lotus chandelier, tile displays, and fabric samples.

Let’s Work Together

Chinoiserie mural wallpaper behind a gilded Louis-style armchair and brass pedestal side table in a Color Sanctuary designed reading nook.

Photo by Emily Barrows Photography